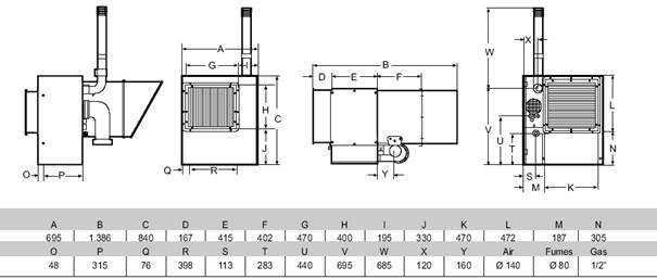
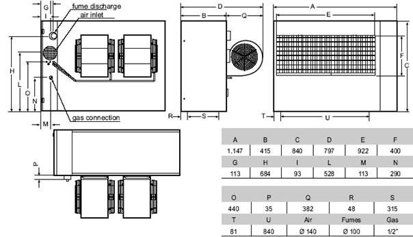
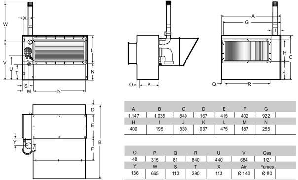
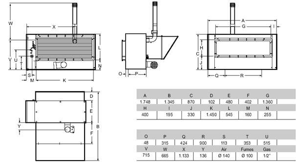
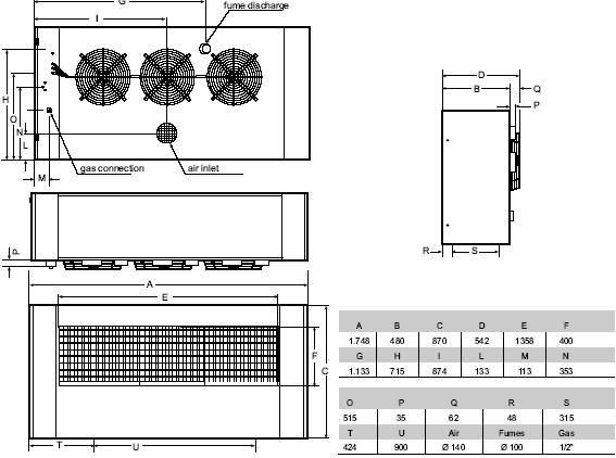
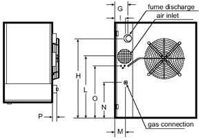
Kućište je izrađeno od čeličnog lima lakiranog epoksidnim prahom što garantira dugi vijek trajanja. Na prednjem dijelu se nalazi otvor za izbacivanje tretiranog zraka predviđen za kanalsku izvedbu. Na izmjenjivaču nalazi se termostat ventilatora i osjetnik sigurnosnog termostata. Također se nalazi otvor za električni priključak kod eventualne montaže protupožarne zaklopke.
Na zadnjem dijelu se nalaze:
- centrifugalni ventilator(i) sa zaštitnom rešetkom
- priključci za zrak za izgaranje i za odvod dimnih plinova
- priključak plina
- otvor za električni priključak
Na bočnoj desnoj strani u unutrašnjosti se nalaze:
- električni ormar
- automatika plamenika
- tipka za deblokadu s odgovarajućim osvjetljenjem
- sigurnosni termostat
- diferencijalni presostat
- plinski dio
- ventilator za izbacivanje dimnih plinova (osim kod modela 85)
Samo kod modela 85 , na lijevoj bočnoj strani u unutrašnjosti se nalaze:
- transformator paljenja s elektrodom za drugi plamenik
- plinski priključak kolektor i ventili za napajanje drugog plamenika
U unutrašnjosti uređaja se nalazi:
- komora za izgaranje i izmjenjivač topline od inox čelika
- ventilator za izbacivanje dimnih plinova (samo kod modela 85)
- atmosferski plamenik od inox čelika s elektrodama paljenja i ionizacijskom elektrodom (kod modela 85 nalaze se dva plamenika po jedan na suprotnim stranama)
KLASIFIKACIJA APARATA
Definiraju se kao ˝Plinski kaloriferi zrak-zrak s atmosferskim plamenikom i ventilatorom u krugu izgaranja˝.
Klasificirani su i po europskim normativima EN437 i EN 1020 kao:
Po kategoriji: ovisno o vrsti plina, različitim tlakovima napajanja kojima se koriste; po tipu: ovisno o načinu izbacivanja dimnih plinova.
1. Kategorija II 2H3+
Uređaj može koristiti dvije vrste plina. Atmosferski plamenik može se koristiti zemnim plinom – grupa H, te tekućim plinom butan propan s tlakom od 28-30 i 37 mbara.
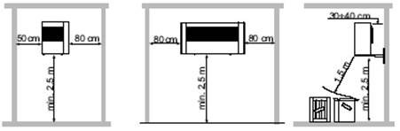
2. Tip C12
Izgaranje je zatvoreno u odnosu na prostor gdje se uređaj želi montirati, a odvod dimnih plinova i dovod zraka za izgaranje je van prostorije pomoću odgovarajućih dovodnih i odvodnih cijevi kroz zid, a obuhvaćaju površinu od 50 cm2.
3. Tip C52
Izgaranje je odvojeno u odnosu na prostor gdje se uređaj želi montirati, a odvod dimnih plinova i dovod zraka za izgaranje je van prostorije pomoću odgovarajućih dovodnih i odvodnih cijevi kroz zid koje mogu biti na različitim stranama objekta. Odvod dimnih plinova može se izvesti kroz krovište.
4. Tip B52
Dovod zraka za izgaranje je iz prostorije koja se želi zagrijavati, dok je odvod dimnih plinova izveden direktno kroz vanjski zid ili krovište.
Atesti i oznaka CE
Plinski uređaji imaju europski certifikat CE u skladu s europskom direktivom CEE 90/396, CEE 73/23 (˝Niski napon˝) te CEE 89/336 (˝Elektromagnetska kompatibilnost˝).
Kaloriferi MEC EX projektirani su za vanjsku montažu, te su kao takvi atestirani i imaju zaštitu IP 44.
Osim toga oznaka CE je prepoznatljiva kao atest o protupožarnoj sukladnosti.

|